
Mobiele toiletten
Huren van een toiletwagen voor elke bezoeker
Bij Jaeken Verhuurbedrijf ben je aan het juiste adres wanneer je een toiletwagen in Limburg of elders in België wil huren. Je hebt de keuze uit verschillende uitvoeringen van toiletwagens, van klein tot groot, van standaard over luxueuze tot super-de-luxe afwerking. Elke mobiele toilet is voorzien van een perfecte afwerking en toonbeeld van hygiëne, zodat je feest, evenement of andere bijeenkomst een succes wordt.
413 STANDAARD toiletwagen
Huur de 413 STANDAARD toiletwagen en zorg dat je bezoekers of medewerkers beschikken over een complete, hygiënische sanitaire voorziening. Met 4 toiletten, 1 zittoilet heren en 3 urinoirs, wastafels en handdrogers biedt deze unit een verzorgde, functionele en hygiënische oplossing voor al je gasten.
Samenstelling
4 zit-toiletten
1 wastafels
1 elektrische handdroger
1 zit-toilet
3 urinoirs
1 wastafel
1 elektrische handdroger
Technische gegevens
Hoogte: 2,800
Breedte: 2,300
Lengte: 5,110 + 1,200




Technische fiche - Standaard 413
01. Afvoer: buis diameter 110
02. Stroomaansluiting 220 V ~
03. Wateraansluiting: GK - Koppeling
04. Urinoirs
05. Wastafels
06. Elektrische handdrogers
10. WC

Compacte toiletcontainer | Container 1-1
Voor een tuinfeestje of klein evenement is er niet altijd de ruimte om een grote toiletwagen te plaatsen. Ook voor deze gelegenheden hebben wij de ideale oplossing: een compacte toiletcontainer. Klein van formaat, eenvoudig te plaatsen met een rupsmachine, en voorzien van twee aparte, mooi verzorgde toiletten met elk een eigen wastafel. Ook voor mensen met beperkte mobiliteit is deze container ideaal dankzij wandbeugels die ondersteuning bieden bij het zitten en opstaan en optionele oprijplaten voor een vlottere toegang tot de toiletten. Comfort en toegankelijkheid voor iedereen.
Samenstelling
2 zit-toiletten
2 wastafels
Technische gegevens
Hoogte: 2,350
Breedte: 1,500
Lengte: 2,150




Technische fiche - Container 1-1
01. Wastafel
02. Toilet
03. Wandbeugel
04. Stroomaansluiting 220 V ~
05. Wateraansluiting 3/4"
06. Afvoer: buis diameter 110

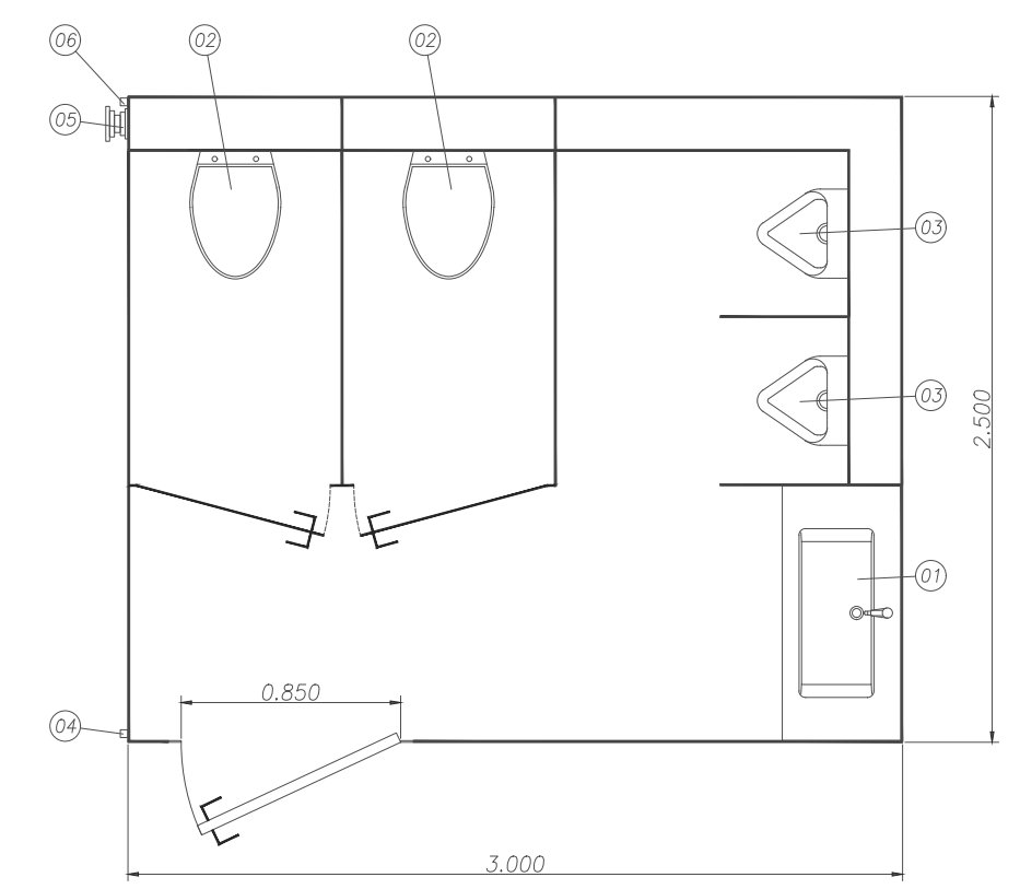
Kleine toiletcontainer | Container 2-2
Wanneer je voor een langere periode tijdelijk nood hebt aan extra toiletten is de kleine toiletcontainer jouw oplossing. Denk maar aan een renovatieproject verspreid over een langere periode, waardoor je een tijdje zonder sanitair zit of extra comfort voor seizoenarbeiders. Deze toiletcontainer mag dan wel klein zijn, de unit is uitgerust met al het nodige comfort: 2 zittoiletten, 2 urinoirs en een wastafel.
Belangrijk om weten: dit type van toiletcontainer kan enkel geplaatst worden met een vrachtwagen. Hou hier dus zeker rekening mee tijdens de levering en ophaling van deze toiletwagen.
Samenstelling
2 zit-toiletten
2 urinoirs
1 wastafel
Technische gegevens
Hoogte: 2,950
Breedte: 2,500
Lengte: 3,000




Technische fiche - Container 2-2
01. Wastafel
02. Toilet
03. Urinoir
04. Stroomaansluiting 220 V ~
05. Afvoer: buis diameter 110
06. Wateraansluiting 3/4"

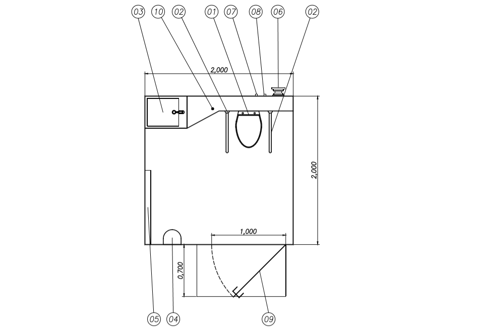
Rolstoelvriendelijke container invalide
Onze rolstoelvriendelijke toiletcontainer is speciaal ontworpen met een maximum aan toegankelijkheid en comfort in het achterhoofd. Naast alle nodige sanitaire voorzieningen zoals een zittoilet, wastafel en verzorgingstafel hebben we ook aan praktische hulpvoorzieningen gedacht. Denk maar aan een oprijplaat, wegklapbare beugels en geluidsalarm. Zo biedt deze unit alles wat bezoekers met beperkte mobiliteit nodig hebben.
Samenstelling
1 zit-toilet
1 wastafel
1 verzorgingstafel
Technische gegevens
Hoogte: 2,520
Breedte: 2,000 (Opgelet! Totale breedte met steunen: 2,250)
Lengte: 2,000




Technische fiche - Container invalide
01. Toilet
02. Wegklapbare beugels
03. Wastafel
04. Afvalbak
05. Wegklapbare verzorgingstafel
06. Afvoer: buis diameter 110
07. Stroomaansluiting 220 V ~
08. Wateraansluiting
09. Oprijplaat
10. Geluidsalarm






